Onia Exceptional Homes predstavlja spoj savremenog luksuza i suptilnog poštovanja lokalnog graditeljskog naslijeđa, uz arhitektonski izraz koji odiše elegancijom i pripadnošću.

U 2025. godini, crnogorski studio “NRA Atelier” je dobio tri prestižna međunarodna priznanja za projekat stambenog objekta “Onia Exceptional Homes”: BIG SEE ARCHITECTURAL AWARD u kategoriji Residential – Housing koju dodjeljuje Zavod za kreativnu ekonomiju iz Ljubljane (Zavod BIG), ICONIC AWARD u kategoriji Arhitektura koju dodjeljuje ugledni German Design Council i priznanje na BLT Built Design Awards 2025. Ove nagrade potvrđuju izuzetnost objekta koji se nalazi u samom centru Budve, na svega nekoliko minuta hoda od starog grada i obalne promenade. Onia Exceptional Homes predstavlja spoj savremenog luksuza i suptilnog poštovanja lokalnog graditeljskog naslijeđa, uz arhitektonski izraz koji odiše elegancijom i pripadnošću.Iza ovog projekta stoji investitor Belmont Developments d.o.o., dok je za sveobuhvatno arhitektonsko i enterijersko oblikovanje zaslužan višestruko nagrađivani podgorički studio NRA Atelier.

Projekat je realizovan kroz interdisciplinarni pristup koji objedinjuje prostornu koncepciju, arhitektonski projekat i dizajn enterijera – od početne ideje i konceptualne razrade, preko izrade idejnog rješenja i glavnog projekta, pa sve do preciznog oblikovanja svakog detalja stambenih jedinica i zajedničkih prostora. Projekat je započet 2022. godine, a objekat je u međuvremenu u potpunosti realizovan, sa ukupnom površinom od 3.375 m2.
PROSTOR SA IDENTITETOM – ONIA EXCEPTIONAL HOMES KAO ODGOVOR NA SAVREMENE POTREBE STANOVANJA
Vizuelni identitet objekta je zasnovan na smirenoj geometriji i pažljivo usklađenoj paleti materijala. Kombinacija zemljanih i svijetlih tonova omogućava objektu da se nenametljivo uklopi u urbano tkivo Budve, dok tamni Fundermax paneli uvode kontrast koji dodatno ističe sofisticiranost arhitektonskog izraza. Ulazna zona je oblikovana kao prostorni akcent, gdje kamene ploče u stilu tradicionalne „suvomeđe“ prizivaju mediteranski duh i upućuju na lokalno graditeljsko naslijeđe. Ovaj detalj nosi dodatnu simboliku, budući da je tehnika gradnje na suvo – korišćena za izradu suvomeđa – zvanično upisana na UNESCO-vu listu nematerijalne kulturne baštine čovječanstva.

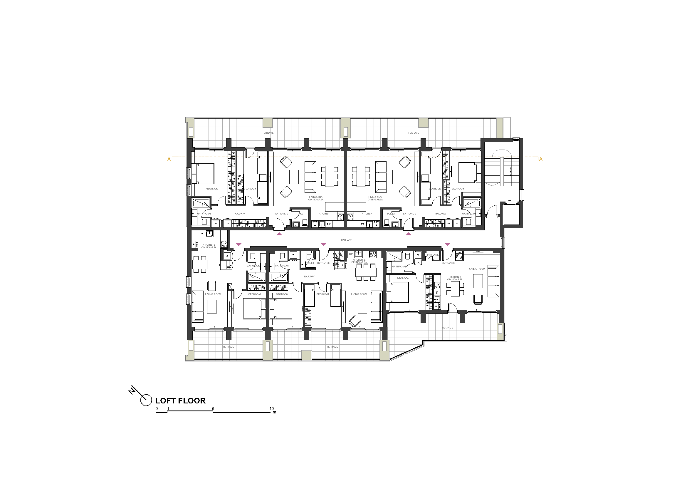
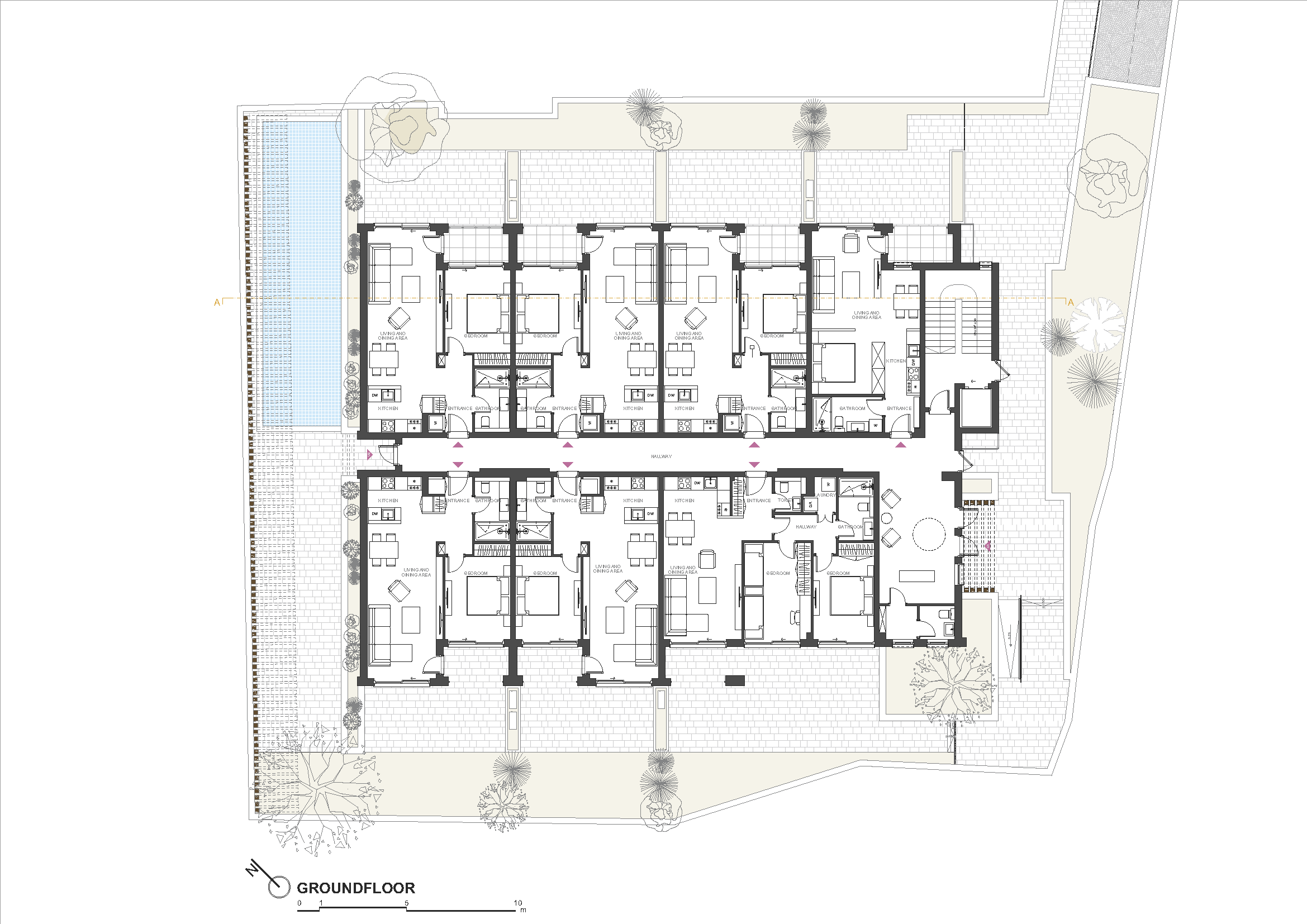
Funkcionalna organizacija objekta je osmišljena sa jasnim fokusom na potrebe savremenog korisnika. Svaka od 28 stambenih jedinica je projektovana na način da obezbijedi visok nivo komfora, kako kroz prostornu artikulaciju i orijentaciju, tako i kroz površine koje nadilaze dotadašnje lokalne standarde. Zanimljivo je da su dimenzije stanova unaprijed odgovarale tehničkim normativima koji su formalizovani tek nakon završetka projekta, čime je Onia anticipirala buduće standarde stanovanja. Stanovi u prizemlju su dodatno obogaćeni privatnim dvorištima od najmanje 30 m2, nudeći korisnicima rijetku privilegiju – direktan kontakt sa otvorenim prostorom u samom centru grada.

Zajednički sadržaji dodatno doprinose kvalitetu života u okviru objekta. Recepcija na ulazu pruža osjećaj sigurnosti i privatnosti, uz ambijent koji podsjeća na hotelski standard.
Grijani bazen na dva nivoa i pažljivo oblikovane zelene površine – koje djelimično prekrivaju kamenu fasadu – nude prostore za opuštanje, susrete i svakodnevni boravak. Enterijeri odišu jednostavnošću i toplinom: dominiraju prirodni materijali, čiste linije i napredni sistemi klimatizacije, što svjedoči o posvećenosti detaljima i kvalitetu izvođenja radova na samom objektu. Izvođenje svih enterijerskih radova je povjereno kompaniji „Lamex“ d.o.o., čime je osigurana dosljedna realizacija projektantske vizije i visok nivo završne obrade.

ARHITEKTONSKI DIJALOG SA KONTEKSTOM – MATERIJALIZACIJA I ORIJENTACIJA KAO ALAT OBLIKOVANJA
Fasadno rješenje objekta Onia Exceptional Homes uspostavlja promišljen dijalog između savremenih arhitektonskih principa i prostornog naslijeđa. U skladu sa duhom mjesta, projektantski tim bira kontrastnu, ali skladnu kombinaciju materijala: ventilisanu oblogu od Fundermax HPL panela i grbaljski kamen u tehnici suvomeđe, čime se ostvaruje vizuelna i taktilna veza sa mediteranskim ambijentom. Ventilisana fasada, izvedena u saradnji sa kompanijom „Lamex“ d.o.o., ekskluzivnim distributerom brenda Fundermax za Crnu Goru i Srbiju, odlikuje se visokim tehničkim performansama. Zahvaljujući sloju vazduha između obloge i zida, omogućena je prirodna cirkulacija koja doprinosi energetskoj efikasnosti, smanjuje pregrijavanje ljeti i gubitak energije zimi, te štiti od vlage i spoljašnje buke.

Paneli su izrađeni od visokopresovanog laminata, otpornog na UV zračenje, temperaturne ekstreme i mehanička oštećenja, što ih čini idealnim za zahtjevne klimatske uslove primorja. Estetski pristup fasadi naglašava spratnost objekta i unosi ritam u njegovu volumetriju. Kombinacija bijelih i smeđih panela omogućava balans između kontrasta i uklapanja u okolno urbano tkivo. Poseban akcenat je dat ulaznoj zoni, gdje je primijenjen grbaljski kamen u tehnici zidanja bez vezivnog materijala – vještini koja je upisana na UNESCO-vu listu nematerijalne kulturne baštine. Ovaj detalj ne samo da evocira duh primorske arhitekture, već i doprinosi osjećaju ukorijenjenosti objekta u lokalni kontekst. Inspiracija je pronađena u proporcijama i materijalnosti tradicionalne bokeške kuće, čiji se jezik reinterpretira kroz savremeni arhitektonski izraz.

Orjentacija objekta je rezultat precizne analize parcele i njenog urbanog okruženja. S obzirom na gustinu izgrađenosti, otvori su pažljivo pozicionirani kako bi se izbjeglo direktno usmjerenje ka susjednim zgradama, čime se korisnicima obezbjeđuje veći stepen privatnosti i vizuelnog komfora. Položaj u pravcima sjeverozapad – jugoistok omogućava optimalnu raspodjelu prirodne svjetlosti tokom dana, uz kontrolu termičkog opterećenja u ljetnjim mjesecima. Jutarnje sunce obasjava jugoistočne fasade, dok sjeverozapadna orijentacija pruža difuzno svjetlo u popodnevnim satima, bez direktnog izlaganja zapadnom suncu. Unutrašnja komunikaciona šema objekta oblikovana je u skladu sa prostornim ograničenjima i logikom pristupa.

Glavno stepenište pozicionirano je na sjeveroistočnoj strani – dijelu parcele koji je najmanje otvoren prema okolini, čime su prostori sa većim potencijalom za osvjetljenje i vizure rezervisani za stambene jedinice. Ova strana parcele bila je jedina koja je omogućavala i kolski i pješački pristup, što je dodatno učvrstilo logiku pozicioniranja vertikalne komunikacije. Stepenište, iako diskretno u funkciji, projektovano je sa pažnjom prema detaljima i materijalizaciji, doprinoseći ukupnom estetskom doživljaju zajedničkih prostora i omogućavajući efikasnu povezanost svih etaža.
ENERGETSKA EFIKASNOST KAO PROJEKTANTSKI IMPERATIV
U objektu „Onia Exceptional Homes“, energetska efikasnost nije tretirana kao tehnički zahtjev, već kao fundamentalni princip projektantske filozofije. Svaka odluka, od izbora materijala do prostorne organizacije, usmjerena je ka stvaranju zdravog, stabilnog i dugoročno održivog životnog okruženja. Za fasadnu bravariju primijenjen je aluminijumski sistem ALUMIL Smartia S560, sa dvoslojnim termoizolacionim staklom i termo-prekidom. Ovaj podizno-klizni sistem omogućava obilje prirodne svjetlosti, visoku toplotnu i zvučnu izolaciju, te nenametljiv vizuelni izraz zahvaljujući uskom profilu i diskretnoj liniji spojeva.

Niska visina praga doprinosi pristupačnosti, dok klizni mehanizam omogućava tiho i lako otvaranje. Na najvišoj etaži, zbog dužine hodnika i potrebe za dodatnim osvjetljenjem, ugrađeni su VELUX krovni prozori koji obezbjeđuju difuzno dnevno svjetlo i poboljšavaju mikroklimu zajedničkih prostora. Isti modeli primijenjeni su i u stanovima, gdje omogućavaju dodatnu ventilaciju i termalnu stabilnost. Korišćeni su proizvodi iz VELUX Standard Plus serije, sa trostrukim staklom, unaprijeđenom zvučnom izolacijom i Uw vrijednošću do 1.1 W/m²K.

Transparentne staklene ograde dodatno naglašavaju savremeni karakter arhitekture, omogućavajući neometan pogled iz stanova i doprinoseći osjećaju lakoće i otvorenosti u vizuelnoj percepciji objekta. Na posljednjem spratu, primijenjeni su SMART VELUX prozori povezani sa sistemom VELUX ACTIVE with NETATMO, koji automatski reaguje na promjene u osvjetljenju spuštanjem roletni, čime se optimizuje potrošnja energije i sprečava prekomjerno zagrijavanje.


Unutrašnji zidovi izvedeni su od XELLA Ytong Fono blokova, koji obezbjeđuju visoku zvučnu izolaciju (do 70 dB u kombinaciji sa dodatnim slojevima), uz odlične termičke karakteristike koje eliminišu potrebu za dodatnim izolacionim materijalima. Kroz ovakav pristup, Onia Exceptional Homes ne samo da ispunjava zahtjeve savremene energetski efikasne gradnje, već ih u mnogim aspektima nadmašuje, postavljajući referentni okvir za buduće projekte u urbanom kontekstu Crne Gore.











































