
- Naziv projekta: Svako Dobro Healthy Bar
- Autor projekta: Main Architects
- Autorski tim: Nikola Ivković i Jovana Vasić
- Lokacija: Beograd, Srbija
- Površina: 70 m2
- Godina realizacije: 2024
- Fotografija: Milica Belojica

Za nas Svako Dobro nije još jedna kafeterija u nizu, a dobar prostor nije onaj koji funkcioniše samo na nivou estetike, već na nivou osećaja. To je prostor koji se gradi polako kroz detalj, meru, doslednost.
Lokal se nalazi na Dorćolu, u delu grada koji kombinuje rezidencijalni mir sa stalnim urbanim pulsiranjem. Enterijer je oblikovan upravo za tu vrstu korisnika — ljude koji žele kratku pauzu od ritma grada, ali bez isključivanja iz njegove energije.

Od samog početka bilo je jasno da mali prostor ne prašta loše odluke. Zato je prvi korak bio postavljanje pitanja:
Da li enterijer treba da podstakne interakciju među ljudima ili da obezbedi individualne zone?
Kako će se materijali ponašati zajedno kada se spoje u jednoj vizuelnoj osi?
Da li je cilj da prostor bude intuitivan ili da se otkriva postepeno, kroz slojeve?
Iz tih pitanja nastala je ideja o enterijeru koji je rastao iznutra, iz razumevanja načina na koji se prostor koristi, promišljanja scenarija boravka, a tek onda iz vizuelnog jezika.Odgovori su vodili ka jasnom izboru da prostor ostane dosledan prirodnoj paleti. Kamen i drvo odabrani su kao materijali kod kojih se tragovi korišćenja ne smatraju nedostatkom već vrednošću. U enterijeru Svako Dobro ta logika vodi celu kompoziciju.

Kao baza postavljena je taktilna zidna obrada koja ujedinjuje prostor. U njenom okviru pojavljuju se naglašene forme: monolitni ručno izrađeni kameni stolovi, nepravilnih ivica i masivnih baza, koji deluju kao isklesani komadi pejzaža. Pitanje je bilo: Kako ih učiniti prisutnim, a ne dominantnim?
Rešenja nisu stizala kroz skice, već kroz fizičke probe. Tek kada se u realnim uslovima sagledalo kako se materijali međusobno ponašaju, projekat je dobio jasne smernice. Proces njihovog nastanka bio je jednako važan kao i sam rezultat: od izbora kamena, preko testiranja forme, do finog podešavanja proporcija. Oblik se čistio postepeno, sve dok masa nije počela da deluje prirodno, kao da pripada prostoru umesto da ga zauzima. Iz tog procesa proizašla je i zamisao da se formira centralni reper — stolovi u samom središtu, dovoljno snažni da preuzmu glavnu ulogu, ali i dovoljno otvoreni da se oko njih spontano razvijaju različite navike boravka. Ručno izrađeni stolovi od travertina uneli su u prostor onu vrstu ambijenta koju može da pruži samo prirodan kamen, čime su postali svojevrsni fokalni elementi.

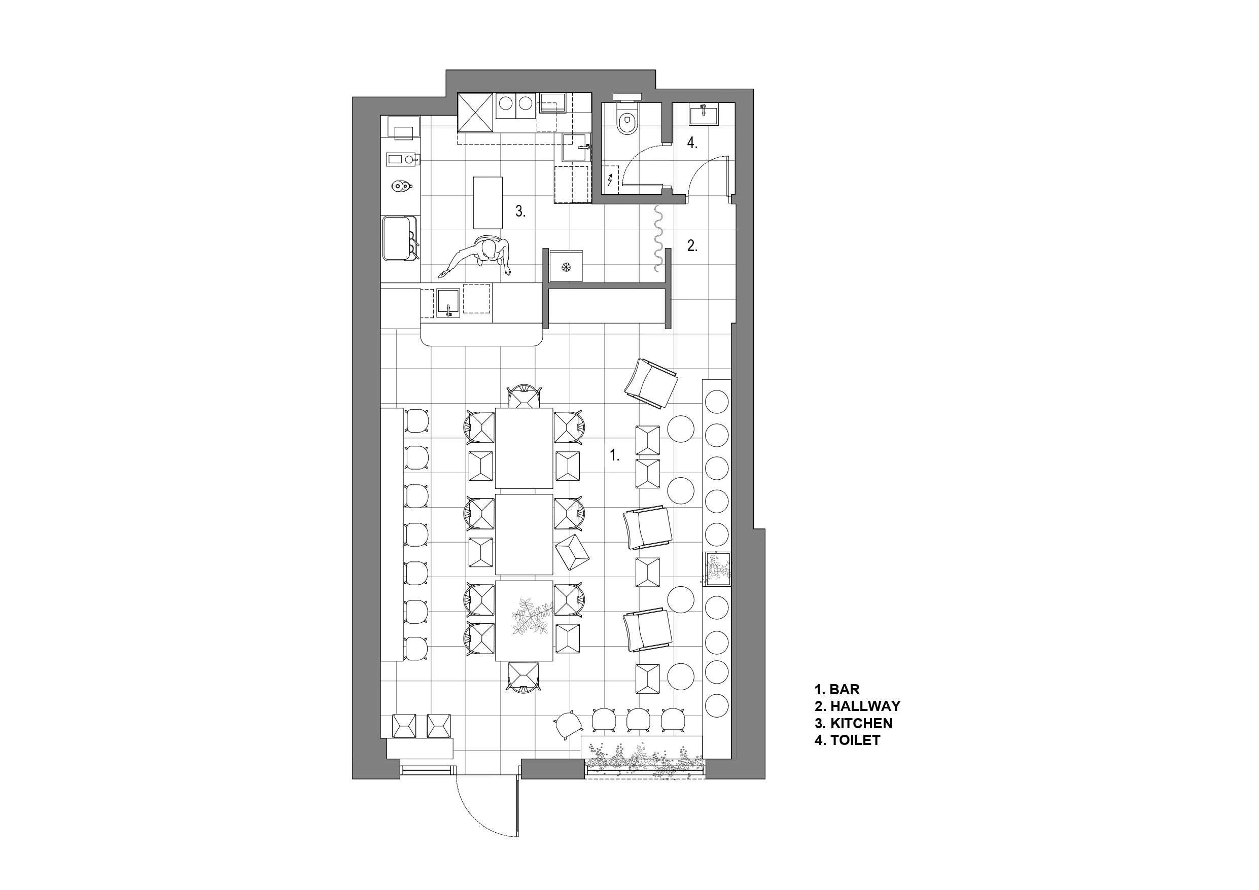
Nasuprot njima, serija laganih drvenih stolica i taburea uvodi balans, dok materijal ostaje dosledan prirodnoj paleti. U Svako Dobro, svedenost je bila definisana kao odsustvo viška, ali ne i odsustvo osećaja. Uz sam ulaz, sa obe strane, postavljen je visoki pult sa nekoliko mesta kao zona za kratka individualna zadržavanja, za korisnike u prolazu, koji dolaze sami ili u paru i zadržavaju se tek koliko traje espresso.
Niskim sedenjem i manjim stolovima formirane su intimnije celine, namenjene manjim grupama i kraćim razgovorima, bez pretenzije na dug boravak. Promišljeno zoniranje prostoru daje slojevitost: on je istovremeno otvoren i dinamičan, ali dovoljno jasan da korisniku intuitivno sugeriše gde i kako da boravi. Jednostavne forme, kontrolisano svetlo i jasno zoniranje — sve zajedno stvara atmosferu koja je topla i funkcionalna, ali ne tehnička; lepa, ali nije generična.
Masa stolova, visina šanka, širina ogledala, ritam drvenih stolica – sve je prošlo iteracije dok nije uspostavljena ravnoteža. To je bio trenutak kada je projektovanje prestalo da bude potraga za rešenjem i postalo nijansiranje odnosa među elementima jednog jasno definisanog sistema.

Svetlo je četvrta dimenzija. Bez dobrog svetla nema dobrog prostora. Rasveta je svedena i nenametljiva. Osvetljenje nikada nije bilo zamišljeno kao dekoracija već kao alat za atmosferu, praćeno zidnim ogledalima koja hvataju fragmente svakodnevnice pretvarajući ih u deo ambijenta.
I na kraju, dobar prostor je onaj koji ljudi požele da koriste, da mu se vrate i da u njemu ispijaju svoju prvu jutarnju kafu. Svako Dobro je projektovano kao mesto koje olakšava rutinu, a ne nadglašava je.












































