Nakon dugogodišnjeg rada u javnom sektoru odlučila sam pokrenuti svoju poduzetničku priču što se pokazalo ispravnim. Moj ured se nalazi u Otoku, prekrasnom naselju u Grudama, u kući koja je izgrađena 1911. godine, i mogu reći da je jako specifičan i ugodan.

Anđelka Zucić, dipl.ing.građ., vlasnica i direktorica firme AZ projektiranje i nadzor d.o.o. Grude
Nakon dugogodišnjeg rada u javnom sektoru odlučila sam pokrenuti svoju poduzetničku priču što se pokazalo ispravnim. Moj ured se nalazi u Otoku, prekrasnom naselju u Grudama, u kući koja je izgrađena 1911. godine, i mogu reći da je jako specifičan i ugodan.
Kroz poslovanje nastojimo biti podrška investitoru od ideje do realizacije i nudimo širok spektar usluga:
- Legalizacija objekata
Klijentima pružamo kompletnu uslugu – prikupljanje dokumentacije, izrada projekta izvedenog stanja, elaborat etažiranja…Sve što je potrebno da objekt postane legalan. - Projektiranje
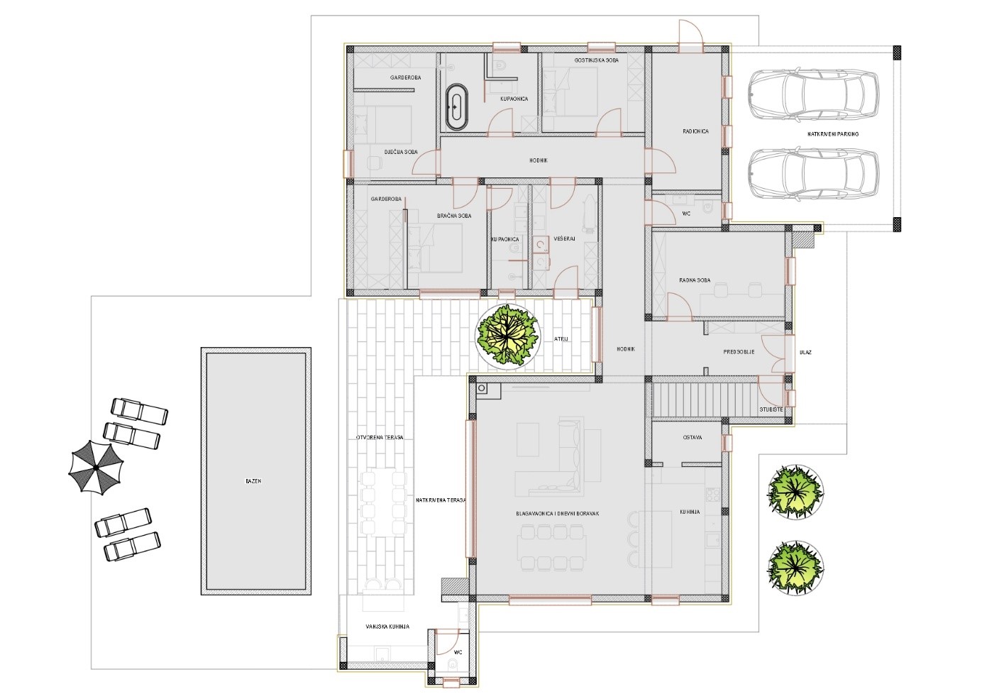
Projektiranje je srce našeg posla.
Bavimo se izradom idejnih, glavnih i izvedbenih projekata za sve vrste objekata. Svaki projekt oblikujemo na način da bude što jednostavniji i funkcionalniji ali naravno želimo i da je vizualno usklađen. Vjerujemo da je svaki projekt posebna priča.


- Građevinski nadzor
Nadzor obuhvaća sve faze izvođenja. Cilj nam je da svaki objekt koji vodimo bude izveden precizno, sigurno i po najvišim standardima. - Dizajn interijera
Interijer vidim kao osobnu priču svakog klijenta.
Naš pristup dizajnu spaja kreativnost, tehničko znanje i pažnju prema detaljima. Sve što nacrtamo treba biti i izvedivo a ne samo lijepo.


- Nekretnine – AZ Nekretnine
S vremenom smo proširili poslovanje i otvorili Agenciju AZ Nekretnine, koja se bavi posredovanjem pri prodaji, kupnji i investiranju u objekte i zemljišta.
Najveći izazov trenutno nam je prodaja objekta od 5100 m2 u Međugorju. Izvrsna prilika za ulaganje u mjestu gdje je posebno razvijen vjerski turizam.

- 3D lasersko snimanje
Prvi smo na našim područjima počeli primjenjivati 3D lasersko snimanje. Tehnologija koja mijenja način rada, donosi efikasnost, preciznost i digitalnu transformaciju. Posebno se pokazala izvrsnom pri rekonstrukcijama objekata kulturne baštine.

Konstantno se educiramo i ulažemo u softversku i uredsku opremu. Nastojimo biti dostupni i otvoreni za razgovor jer znamo koliko je važno da se klijent osjeća sigurno u svakoj fazi gradnje. Kvalitetan i stručan kadar garantira kvalitetnu gradnju.
Imamo sve više zahtjeva za projekte rekonstrukcija starih kamenih kuća. Rado sudjelujemo u tim projektima ali moram priznati da donose velik broj izazova i zahtijevaju strpljenje i posvećenosti detaljima.
Jedan od takvih primjera je kamena kuća u Kongori, općina Grude.


















































